
Demographic
Mont Kiara is the hot spot of expatriates, according to propsocial.my, 56% of the residents are expats.
AVERAGE EXPAT ANNUAL SALARY
RM
0
per annum


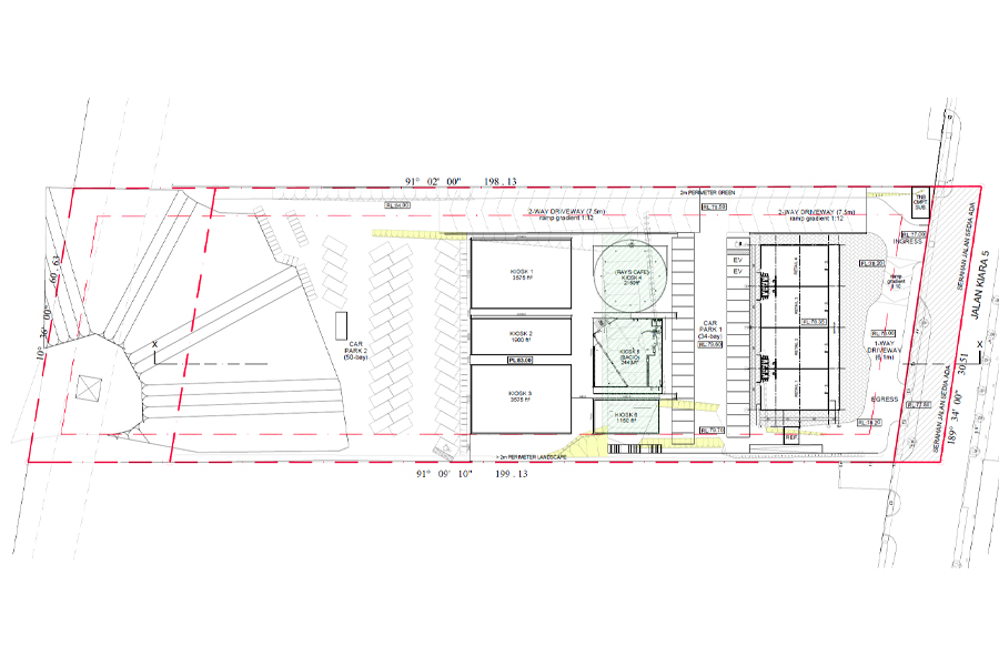
Floor plan
Each individual units in B.LOT are specially designed to be unique bungalow structures, accordingly to the 3 blocks.

The Backyard of the Suburb

BLOCK A

THE FACADE
B.LOT visitors will first be greeted by a huge building with a “crack” in the middle. This will be the landmark of B.LOT.
BLOCK B

LOT 1
The Qing, Shikumei Modern Chinese Dining


LOT 3
MUSTARDFIELDS by Zukini, Western & Local Food Café
LOT 4
Averyday, Premium Bunch Circle Café


LOT 5
Bacio, Italy Restaurant